情報更新日:2025年10月27日/広告有効期限:2025年11月10日
表示閲覧回数(過去30日間):102
お急ぎの方はお電話からお気軽にどうぞ!
082-209-2688 営業時間 / 月~土9:00~18:00 日・祝10:00~18:00 定休日 / 年末年始、夏季休暇、GW
>物件詳細情報
| 基本情報 | |
|---|---|
| 物件番号 | 10007805318 | 
| 店舗形態 | 事務所, 店舗 | 
| オススメ業種 | 事務所, 美容関係, 塾・学校・教育関係 | 
| 物件名 | 上田ビル 1-2F | 
| 物件の状態 | 空き | 
| 引越し時期 | 相談 | 
| 契約形態と期間 | 
        普通契約期間:3年間 | 
    
| 所在地・交通 | |
|---|---|
| 所在地 | 広島県広島市南区南蟹屋1-1-25 | 
| 交 通1 | 広島電鉄皆実線的場町駅 徒歩16分 | 
| 交 通2 | - | 
| 賃料 | |
|---|---|
| 賃 料 | 550,000円(税込) | 
| 敷 金 | 
      6ヶ月 | 
| 礼 金 | 1ヶ月 | 
| その他 | |
|---|---|
| 備考 | 飲食店不可。前面計画道路、約3年後に収用予定。外部駐車場にて充当予定。 | 
| 建物 | |
|---|---|
| 建物構造 | 鉄筋コンクリート造 | 
| 建物階建て | 
      地上7階 | 
| 施工年月 | 1973(昭和48)年 01月 | 
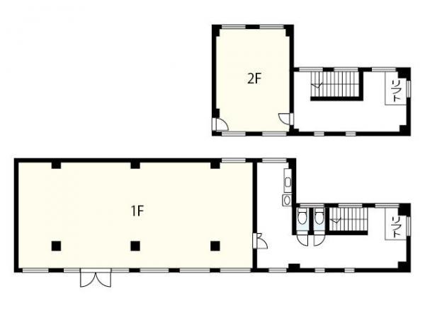
| 募集物件の階数 | 地上 1-2階 | 
| 契約面積 | 235.20m2(71.15坪) | 
| 用途地域 | 近商地域 | 
| 設備 | |
|---|---|
| トイレ | 有/専用 | 
| 駐車場 | |
|---|---|
| 状 況 | 空有 | 
| 駐車料金 | 16,500円(税込) | 
| 空き台数 | 15台 | 
| 取引情報 | |
|---|---|
| 取引態様 | 媒介 | 
| 客付 | 不可 | 
この物件をチェックした人はこんな物件も見ています
- ロードサイドの2階!事務所にお勧め!!
 
広島県広島市安佐南区大塚西5-3-30
 
          227.86m2(68.93坪)
          385,000円(税込)        
- ※
 
広島県広島市安佐北区可部南5-11-8
 
          161.78m2(48.94坪)
          220,000円(税込)        
- 並木通りに面した店舗です!1フロア1テナント。隠れ家でお探しの方にピッタリ!!
 
広島県広島市中区三川町4-14
 
          85.69m2(25.92坪)
          264,000円(税込)        
- 建物1階奥の区画になります。事務所におすすめ!
 
広島県広島市西区中広町3-15-3
 
          39.27m2(11.88坪)
          88,000円(税込)        
- 解約予定:2025年10月末
 
広島県広島市西区天満町6-1
 
          56.68m2(17.15坪)
          70,000円(税込)        
今日チェックした物件
お急ぎの方はお電話からお気軽にどうぞ!
082-209-2688 営業時間 / 月~土9:00~18:00 日・祝10:00~18:00 定休日 / 年末年始、夏季休暇、GW


082-209-2688






       
       
       
      

          




082-209-2688